室內設計 效果圖 VR全景圖 均可以製作
💫室內設計CAD彩色平面圖 後期處理 //CAD彩平圖PS製作//戶型優化//3D效果圖//幫你畫圖//代客3D渲染圖💫
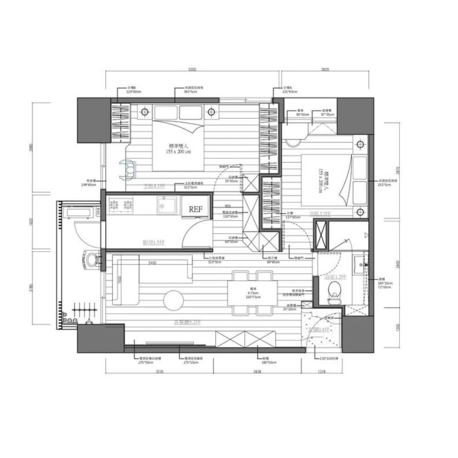
家配圖,傢配圖,平面圖上色,墨線圖,平面圖,一樓全區彩圖,房地產專業平面圖繪
⚠️ 購買前 請先詳細與我聊聊 確認後再付款,平面圖均提供三次修改。
🆗需要您提供//討論
1.模型檔案,例:Skp、3ds、CAD、PDF
2.貼圖材質類型
3.風格類型
🆗渲染收費
依場域大小及複雜度計價
🆗 獨家辦理
🆗 辦理時間 1-3天
🔥 購買流程:
1. 與我聊聊 或是 L@確認後再下標付款 (可先付一半訂金)
2. 後續會說明持續溝通
3. 處理到好後打包給您
4. 確認完成訂單。
室內設計CAD彩色平面圖 後期處理 //CAD彩平圖PS製作//戶型優化//3D效果圖//幫你畫圖//代客3D渲染圖





此商品暫時沒有評價